I have recently had the opportunity to work with the Tsuut’ina Nation-Canderel Development Partnership on some design and communications work, including the website for their upcoming Taza development. I’m pleased to see the launch of the ExperienceTaza.com website this week, which provides information on this transformative First Nations project, located right on the edge of Calgary.
EDIT February 22, 2020 – The ExperienceTaza website has been replace with the new TogetherAtTaza.com website.
EDIT December 2019 – The first tenant announced for the project is a new Costco, part of “The Shops at Buffalo Run” development located within in the Taza Exchange area near 130th avenue SW.
(For more on the origins and history of this project, see The Road to Development Part 1)

Taza is a series of three commercial development areas, or ‘villages’, that are located on the eastern edge of the Tsuut’ina Nation reserve. From north to south, Taza Park, Taza Crossing and Taza Exchange are connected along a 9km portion of Calgary’s Southwest Ring Road, known as Tsuut’ina Trail where it crosses the reserve. The name ‘Taza’ is a Tsuut’ina word for an expression of amazement, and the development has adopted the tagline ‘Together at Tsuut’ina’.

The Taza development is a joint-venture between the Tsuut’ina Nation and the development company Canderel, and represents the culmination of nearly 50 years of economic development and planning by the Nation. For the story on the early years of the Nation’s economic planning, click here.
Click on the maps in the following sections for a larger version of each.
Taza Park
Taza Park is a 530-acre parcel of land located on Glenmore Trail that was previously home to the Harvey Barracks Military base. The ring road bisects Taza Park into two parcels, and the development area extends from the community of Lakeview on the east to Discovery Ridge on the west.
Access to the site is provided by three primary interchanges at 37th street SW and Glenmore Trail, at Tsuut’ina Parkway at Tsuut’ina Trail and at the new Westhills Way. Secondary access is also planned at several existing roads along 37th street SW that were originally built to provide access to the former military base.
The area is touted as a “dynamic recreation and entertainment destination” and consists of a mix of retail, dining, residential, recreational and cultural amenities. Taza Park interfaces with the existing community of Lakeview with a new lower-density residential area on the west side of 37 street SW.
The plans also feature a ‘pedestrian-friendly Market Street’, and includes a network of cycle paths, parks and artificial lakes and ponds, much of which is located overlooking the Elbow river valley and the Weaselhead area.
Taza Crossing
Taza Crossing is a 360-acre development located to the south of the Glenmore Reservoir and is bounded by Tsuut’ina Trail to the west, and by the community of Oakridge to the east. Access is provided by an interchange on the ring road at the new extension of 90th avenue SW, which will be intersected by an extension of Southland drive.
Taza Crossing is intended to be a hub of ‘Health, wellness, and innovation’, and features areas dedicated to commercial, research, residential and senior’s living developments. Large park areas are planned throughout the development, particularly around the residential sections close to Oakridge and along the interface with the Weaselhead park.
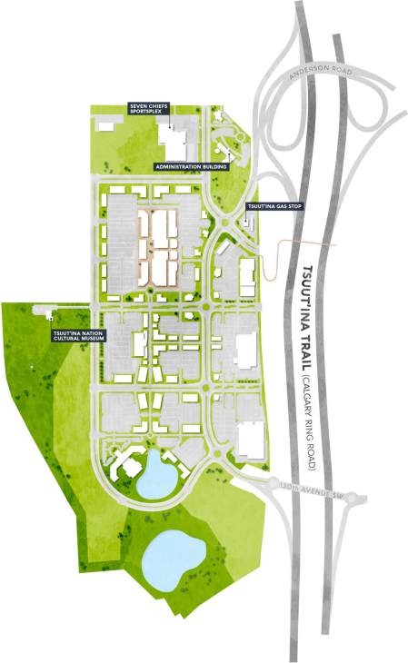
Taza Exchange
Taza Exchange is a 390-acre area that is located near existing Tsuut’ina Nation facilities. This area is already home to the Nation’s Administration Building, the Tsuut’ina Nation Cultural Museum, and the Tsuut’ina Gas Stop, as well as the new Seven Chiefs Sportsplex, which is currently under construction and set to open by the end of 2018.
Much of the Taza Exchange land was previously occupied by the former Buffalo Run golf course, and is located west of Tsuut’ina Trail, between the Anderson Road and 130th Avenue SW interchanges.
Taza Exchange is intended as a “vibrant regional retail, office, and tourism district”, with areas for retail, dining, cultural and recreational offerings . A ‘resort’ district overlooks the Fish Creek valley (or Wolf Creek, as it’s known in Tsuut’ina) to the south.
With thanks to Bryce Starlight, Dan Van Leeuwen and William Briscoe of the Tsuut’ina Nation-Canderel Development Partnership, and to Councillor Lyle Dodginghorse of the Tsuut’ina Nation.



Very good report on the proposed Taza “Villages”. I like what’s been proposed and what has been done already with the opening of the new Costco store.
Would you know if there are any automotive dealerships to be built as part of the development plans?